
We tailor every marketing campaign to a customer’s requirements and we have access to quality marketing tools such as professional photography, video walk-throughs, drone video footage, distinctive floorplans which brings a property to life, right off of the screen.
A RARE AND EXCITING OPPORTUNITY HAS ARISEN TO PURCHASE A SUBSTANTIAL THREE/FOUR BEDROOM DETACHED BUNGALOW SITUATED ON A GARDEN PLOT OF JUST OVER A THIRD OF AN ACRE
Located within Shipley, a small South-East Derbyshire village, lying between the larger towns of Ilkeston and Heanor, and noted for Shipley Country Park. The position of the property being elevated to the front and dropping away to the rear allows for far reaching views over surrounding countryside to the rear.
The bungalow is in very much livable condition, although a certain degree of modernisation is required. The accommodation currently comprises entrance porch to large central hallway, front reception room (which could be a fourth bedroom), three double bedrooms, bathroom and shower room facilities. To the rear of the property is a large family dining kitchen with access to a separate utility and a sitting room which enjoys rear aspects.
Set back from the road with driveway, parking and garage. There is an enclosed garden to the far side of the garage and the main gardens are located to the rear and tiered with the rear boundary backing onto paddocks and open fields.
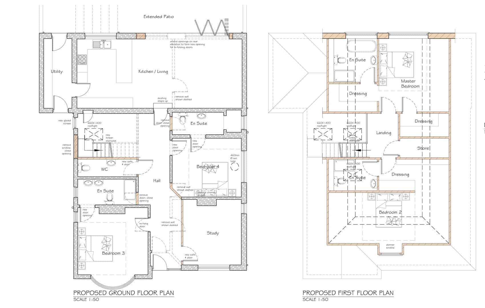
The current owner has previously applied and had granted, although now lapsed OUTLINE PLANNING CONSENT GRANTED TO CONSTRUCT A NEW DWELLING IN THE GROUNDS AS WELL AS PLANNING PERMISSION TO EXTEND AND RE-DEVELOP THE BUNGALOW INTO A MODERN CONTEMPORARY FOUR BEDROOM TWO STOREY PROPERTY.
This therefore offiers potential, subject to renewed planning a fantastic opportunity for property developers, as well as those looking to build their own "Grand Design" and possibly where two families are looking to join forces and live side by side. Alternatively, a buyer may wish to simply modernise, extend and enjoy the existing property on a superb third acre garden plot with enviable views.
ENTRANCE PORCH
Double glazed window and front entrance door. A glazed door and window to hallway.
HALLWAY 7.9 x 1.8 (25'11" x 5'10")
Hatch and ladder to boarded loft.
FRONT RECEPTION ROOM 3.98 x 3.78 (13'0" x 12'4")
Flame effect gas fire and surround, potential fourth bedroom, two radiators, double glazed window to the side and double glazed bay window to the front.
BEDROOM ONE 3.78 x 3.94 (12'4" x 12'11")
Radiator, double glazed window to the side and front.
BEDROOM TWO 3.93 x 3.34 (12'10" x 10'11")
Two radiators, double glazed window to the side.
BEDROOM THREE 3.64 x 3.40 (11'11" x 11'1")
Radiator, double glazed window to the side.
FAMILY BATHROOM 3.51 x 1.48 (11'6" x 4'10")
Three piece suite comprising wash hand basin, low flush WC and bath. Linen cupboard, radiator, double glazed window.
SHOWER ROOM 4.02 x 1.26 (13'2" x 4'1")
Three piece suite comprising wash hand basin, low flush WC and shower cubicle, heated trowel rail, radiator, double glazed window.
KITCHEN 3.98 x 5.45 (13'0" x 17'10")
Access to utility room and sitting room. The kitchen area comprises a fitted range of wall, base and drawer units with work surfacing and inset one and a half bowl sink unit with single drainer. Built-in electric oven, hob and extractor. Cupboard housing the gas boiler (for central heating and hot water purposes). Double glazed window to the rear.
DINING AREA
Table and chair space, radiator, double glazed window to the rear.
SITTING ROOM 3.93 x 3.87 (12'10" x 12'8")
Flame effect gas fire with Adam-style surround, radiator, double glazed window to the rear.
UTILITY ROOM 3.98 x 1.71 (13'0" x 5'7")
Base units with work surfacing, plumbing for washing machine, radiator, double glazed windows to the front and rear elevations.
OUTSIDE
The property is set back from the road with a driveway providing off-street parking and leading to a single detached brick built garage. The front gardens is laid to ornamental gravel and shrubs. There is a separate pedestrian access from the road leading to one side of the property and the utility room. To the far side of the garage is a walled and fenced in garden area, previously a vegetable patch. The rear gardens are tiered with a paved area beyond the rear elevation and utility door with steps leading to a large patio and terraced area with pond and brick built workshop. Beyond this area is a large area of grass (somewhat overgrown) with a number of specimen trees and shrubs. There are various garden outbuildings including a greenhouse and sectional concrete shed.
PLANNING
Planning consent was passed on 8th March 2022 for the alterations and extensions to the existing dwelling. Further information can be found on the Amber Valley Borough Council website, searching for the Planning Application Number AVA/2022/0025.
IN ADDITION TO THIS.
Outline planning consent was passed on 26th July 2022 for the erection of a new detached dwelling within the grounds. For further information, please visit the Amber Valley Borough Council website, searching using the Application Number AVA/2022/0029.
DEVELOPMENT OPPORTUNITY TO CONSTRUCT NEW DWELLING AS WELL AS EXTEND EXISTING.
