
We tailor every marketing campaign to a customer’s requirements and we have access to quality marketing tools such as professional photography, video walk-throughs, drone video footage, distinctive floorplans which brings a property to life, right off of the screen.
WELCOME TO FIELD FARM.
*THE TISSINGTON*
Robert Ellis are delighted to welcome Field Farm, Stapleford developed by Peveril Homes.
The Tissington is a three-bedroom detached home in Stapleford. The ground floor offers a spacious kitchen/dining area with utility and store. It also has patio doors leading out to the garden. From the hallway you’ll find a full-length lounge and separate wc.
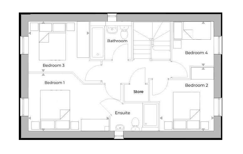
The first floor of this Stapleford new build offers three bedrooms and a family bathroom with the master bedroom also having an en-suite bathroom. Separate storage is also provided from the landing space.
Field Farm offers a stunning mix of two, three, four, and five-bedroom new builds which have been designed to reflect the rich history and character of the surrounding area. This house for sale in Nottinghamshire will allow you and your family to enjoy a lifestyle that perfectly blends the tranquil countryside and the nearby bustling town of Stapleford.
Measuring approx 980SQFT.
Situated on the outer rim of Stapleford, bordering Trowell, the site is ideally located close to a range of nearby transport links such as the A52, M1 and Nottingham Tram line as well as good local schooling and nearby shopping and the countryside.
For more information contact Robert Ellis on 0115 9490044.
HALLWAY
LOUNGE 5.42 x 3.04 (17'9" x 9'11")
FAMILY DINING KITCHEN 5.42 x 2.85 (17'9" x 9'4")
UTILITY AREA
WC
LANDING
MASTER BEDROOM 3.46 x 2.85 (11'4" x 9'4")
BEDROOM 2 3.2 4x 2.59 (10'5" 13'1"x 8'5")
BEDROOM 3 3.08 x 2.74 (10'1" x 8'11")
FAMILY BATHROOM
DRIVEWAY PARKING
PEACE OF MIND
Each home will be independently surveyed during construction by LABC, who will issue their 10 year warranty certificate on completion of each home.
A NEW BUILD, THREE BEDROOM SEMI DETACHED HOUSE.


