
We tailor every marketing campaign to a customer’s requirements and we have access to quality marketing tools such as professional photography, video walk-throughs, drone video footage, distinctive floorplans which brings a property to life, right off of the screen.
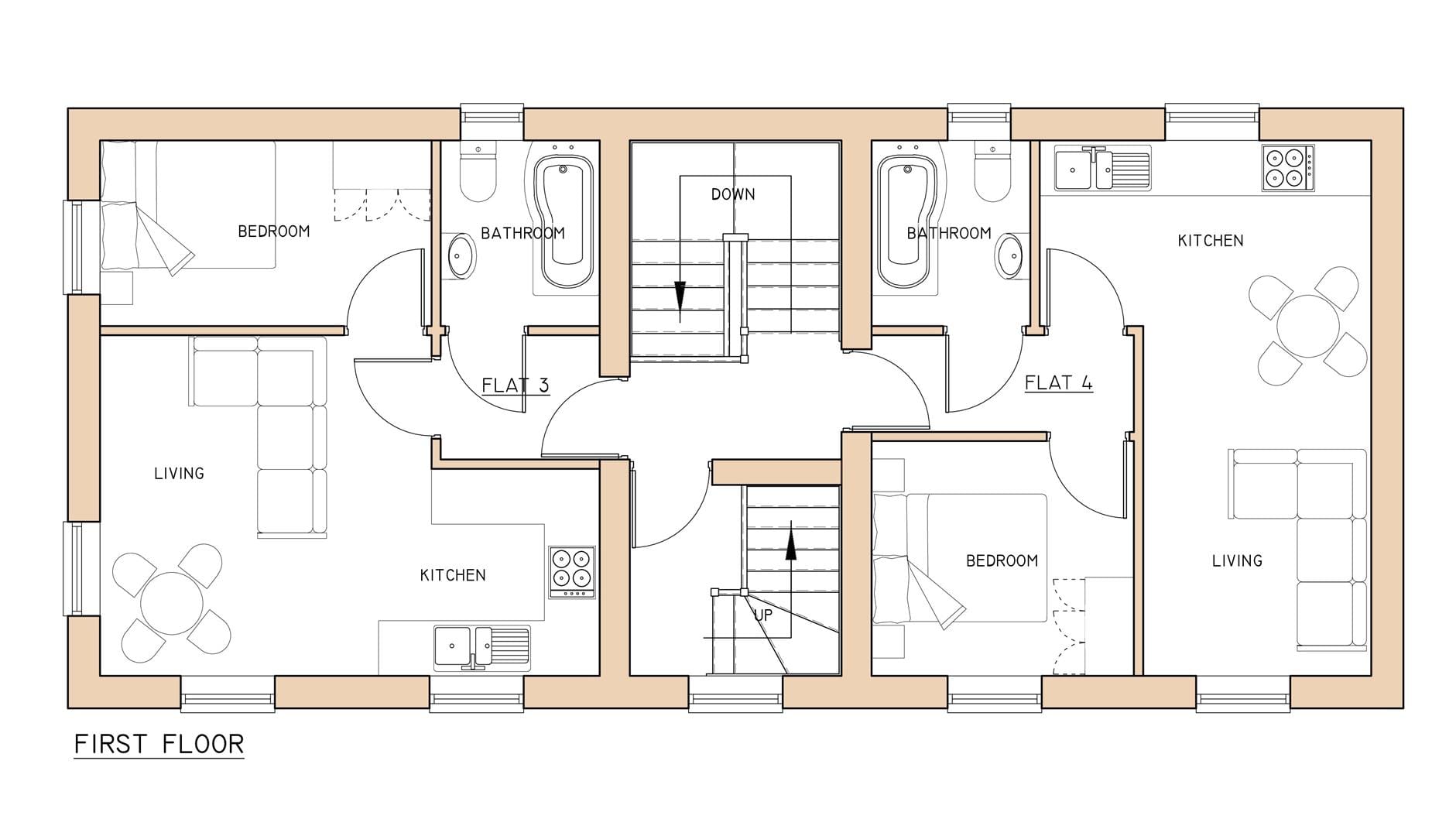
A rare and interesting opportunity has arisen to purchase a parcel of land with full planning permission passed for a three storey development of five apartments.
Situated close to the vibrant town centre of Kimberley, the current planning permission passed provides for five apartments over three floors and a penthouse style apartment to the second floor.
Once built, these apartments will be ideal for long term rental or to be offered to the open market for first time buyers, professionals and those looking to downsize.
Kimberley is a vibrant market town in the Borough of Broxtowe, lying approximately six miles north-west of Nottingham along the A610. Kimberley has undergone a positive transformation following recent residential redevelopment schemes and has been recently awarded levelling up funds from the Government, boosting the town even further.
The building plot fronts Main Street and is approximately 230sqm in size. Permission was granted on 31st July 2023 by Broxtowe Borough Council, File Ref. 22/00871/FUL.
Further information can be provided on request.