
We tailor every marketing campaign to a customer’s requirements and we have access to quality marketing tools such as professional photography, video walk-throughs, drone video footage, distinctive floorplans which brings a property to life, right off of the screen.
ROBERT ELLIS ARE DELIGHTED TO WELCOME TO THE MARKET THIS WELL PRESENTED TWO BEDROOM SEMI DETACHED HOUSE POSITIONED IN THIS QUIET RESIDENTIAL NO-THROUGH ROAD CUL DE SAC LOCATION.
With accommodation over two floors, the ground floor comprises side entrance hallway, front living room and rear dining kitchen. The first floor landing provides access to two bedrooms and a bathroom.
The property also benefits from gas fired central heating from a combination boiler, double glazing throughout, off-street parking and a generous enclosed garden space to the rear.
The property offers easy access to nearby schooling for a variety of age groups. There is also easy access to Hickings Lane Recreation Ground which is currently undergoing a program of renovations and improvements to include a new community sports pavilion and artificial football pitches. There is also an Aldi nearby, as well as the further shops, services and amenities in Stapleford town centre.
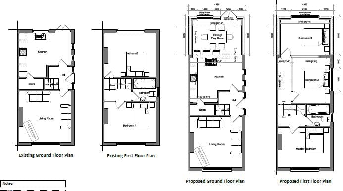
The property has previous granted planning permission which has now expired for a two storey extension to the rear incorporating an open plan kitchen diner and third bedroom. Details can be found with the Planning Reference 16/00566/FUL on the Broxtowe Planning Website.
For those needing to commute, there are good road networks, such as the A52 for Nottingham and Derby, Junction 25 of the M1 motorway, the Nottingham electric tram terminus situated at Bardills roundabout, as well as the i4 bus service to and from Nottingham/Derby.
We believe the property will make an ideal first time buy or young family home. We highly recommend an internal viewings.
HALL 1.78 x 1.76 (5'10" x 5'9")
uPVC panel and double glazed side entrance door with double glazed windows to either side of the door, staircase rising to the first floor with decorative wood panels, radiator, coat pegs. Doors to living room and dining kitchen.
LIVING ROOM 4 x 4 (13'1" x 13'1")
Double glazed window to the front, radiator, laminate flooring, coving, picture rail, media points, central chimney breast incorporating an Adam-style fireplace with decorative tiled inserts and hearth housing a coal effect fire.
BREAKFAST KITCHEN 3.98 x 3.54 (13'0" x 11'7")
The kitchen comprises a matching range of fitted base and wall storage cupboards and drawers, with roll top work surfacing, incorporating single sink and draining board with central swan-neck mixer tap, decorative tile splashbacks, fitted four ring gas hob with extractor over and oven beneath, plumbing for washing machine and dishwasher, as well as further space for full height fridge/freezer, two double glazed windows to the side, further double glazed window to the rear, double glazed French doors opening out to the rear garden, tile effect flooring, radiator, telephone, spotlights. Door to useful understairs pantry cupboard which has shelving and lighting.
FIRST FLOOR LANDING
Decorative wood spindle balustrade, coving, loft access point. Doors to bedrooms and bathroom.
BEDROOM ONE 4 x 3.42 (13'1" x 11'2")
Double glazed window to the rear, radiator, boiler cupboard housing the gas fired combination boiler for central heating and hot water purposes, picture rail, decorative ornate fireplace with tiled hearth.
BEDROOM TWO 4 x 3.09 (13'1" x 10'1")
Double glazed window to the front, radiator, picture rail. Chimney breast incorporating decorative ornate fireplace.
BATHROOM 1.67 x 1.72 (5'5" x 5'7")
Three piece suite comprising tiled-in bath with foldaway glass screen, mixer tap, shower attachment over, push flush WC, wash hand basin with mixer tap and storage cabinet beneath. Panelling to dado height, radiator, double glazed window to the side.
OUTSIDE
To the front of the property there is a front driveway providing off-street parking with pathway leading down the side of the house to the entrance door with decorative gravel stone chippings.
TO THE REAR
The rear garden is enclosed by timber fencing with concrete posts and gravel boards to the boundary lines, "L" shaped patio area (ideal for entertaining), high quality artificial lawn, pitched roof timber storage shed, as well as an external lighting point and water tap.
DIRECTIONS
From our Stapleford Branch on Derby Road, proceed to the Roach traffic lights and turn left onto Church Street. At the bend in the road, turn right onto Hickings Lane and proceed past the entrance to the recreation ground. Take a right hand turn onto West Avenue and then turn right onto West Cross Avenue. The property can be found on the right hand side, identified by our For Sale board.
AGENT NOTE
The photo provided is of what the original (now expired) planning permission would have looked like. As this has now expired, an onward purchaser would need to speak to Broxtowe Borough Council should they wish to recover the planning permission once more.
A TWO BEDROOM SEMI DETACHED HOUSE SITUATED IN THIS QUIET RESIDENTIAL CUL DE SAC LOCATION.


