
We tailor every marketing campaign to a customer’s requirements and we have access to quality marketing tools such as professional photography, video walk-throughs, drone video footage, distinctive floorplans which brings a property to life, right off of the screen.
THIS IS AN INDIVIDUAL BUILDING PLOT OF APPROX 0.6 OF AN ACRE IN SIZE LOCATED ON THE OUTSKIRTS OF WESTON ON TRENT.
This large plot of land provides a new owner with the opportunity to have a high quality architecturally designed house built to suit their own requirements. The plot has planning permission for a large individual home to be constructed and there is the option for a new owner to have the home built for which planning permission has been obtained, to be built by the development company who currently own the land, or they can organise to build the same house for themselves or have a different property built to their own design and layout - subject to obtaining a revised planning permission.
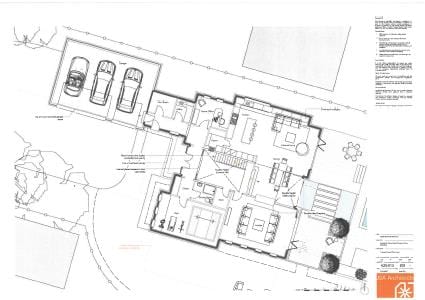
The house which has been approved to be built has been designed by JSA Architects who are a creative architectural studio specialising in innovative sustainable designs. They are an established pro-active architectural business who have completed many projects throughout Derbyshire and Nottinghamshire where they have created forward thinking environmentally responsive buildings.
The site is located on the left hand side of Weston Road as you approach the village from Aston on Trent. As people will see when they visit the site, there are similar high quality, substantial homes on either side of Weston Road and the village is well established with local amenities including a Primary school, a village hall, the well regarded Coopers Arms pub and various recreational facilities. The location is approx. 6 miles south-west of Derby city centre and is also well placed for easy access to Nottingham, Loughborough and Leicester and is only a short drive away from the M1, A50 and A42 which help to provide easy access to these major East Midlands towns and cities, as well as those in the West Midlands. There are also stations at Derby, Long Eaton and East Midlands Parkway and East Midlands Airport is only a 20 minute drive away.
The plot is broadly rectangular and falls away slightly from Weston Road and extends to a depth of approx. 110m. The property designed is to located towards the front of the plot with the triple garaging helping to create screening from the road. The majority of the gardens are at the rear of the house and these provide an opportunity to landscape and design the land around this distinctive property to suit the aspirations of a new owner.
Further information can be provided about the plot and proposed property to be built by contacting Mark Philpott of Robert Ellis on 0115 946 1818.
FOUND IN THIS DESIRABLE VILLAGE LOCATION, A BUILDING PLOT OF 0.6 OF AN ACRE APPROX