
We tailor every marketing campaign to a customer’s requirements and we have access to quality marketing tools such as professional photography, video walk-throughs, drone video footage, distinctive floorplans which brings a property to life, right off of the screen.
WELCOME TO FIELD FARM.
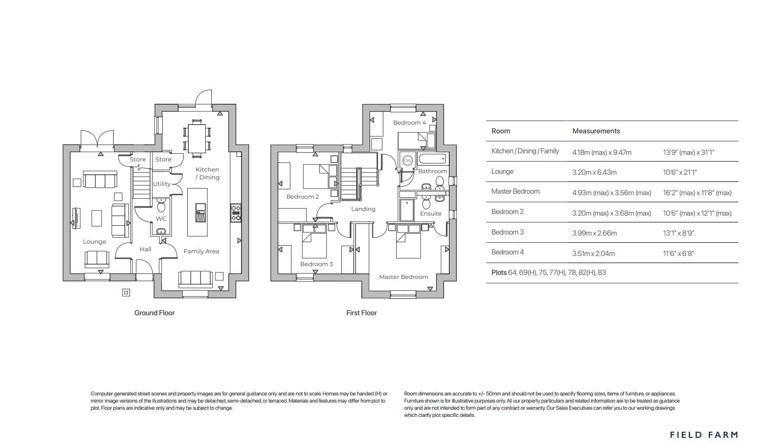
*QUORN*
Robert Ellis are delighted to welcome Field Farm, Stapleford developed by Peveril Homes.
This is a three bedroom semi-detached house with accommodation over three floors.
Measuring approx 1148sqft.
Situated on the outer rim of Stapleford, bordering Trowell, the site is ideally located close to a range of nearby transport links such as the A52, M1 and Nottingham Tram line as well as good local schooling and nearby shopping and the countryside.
For more information contact Robert Ellis on 0115 9490044.
HALLWAY
LOUNGE 4.43 x 3.87 (14'6" x 12'8")
FAMILY DINING KITCHEN 3.70 x 3.59 (12'1" x 11'9")
UTILITY AREA
WC
LANDING
BEDROOM 2 3.76 x 2.87 (12'4" x 9'4")
BEDROOM 3 2.92 x 2.63 (9'6" x 8'7")
FAMILY BATHROOM
LANDING
MASTER BEDROOM 5.69 x 2.87 (18'8" x 9'4")
EN-SUITE
SINGLE GARAGE
DRIVEWAY PARKING
PEACE OF MIND
Each home will be independently surveyed during construction by LABC, who will issue their 10 year warranty certificate on completion of each home.
A NEW BUILD, THREE BEDROOM SEMI DETACHED HOUSE.


